BunkerAtlas Logo
Map Database 629

629

-

Military Bunker

Unknown

Get Directions

Gallery

Description

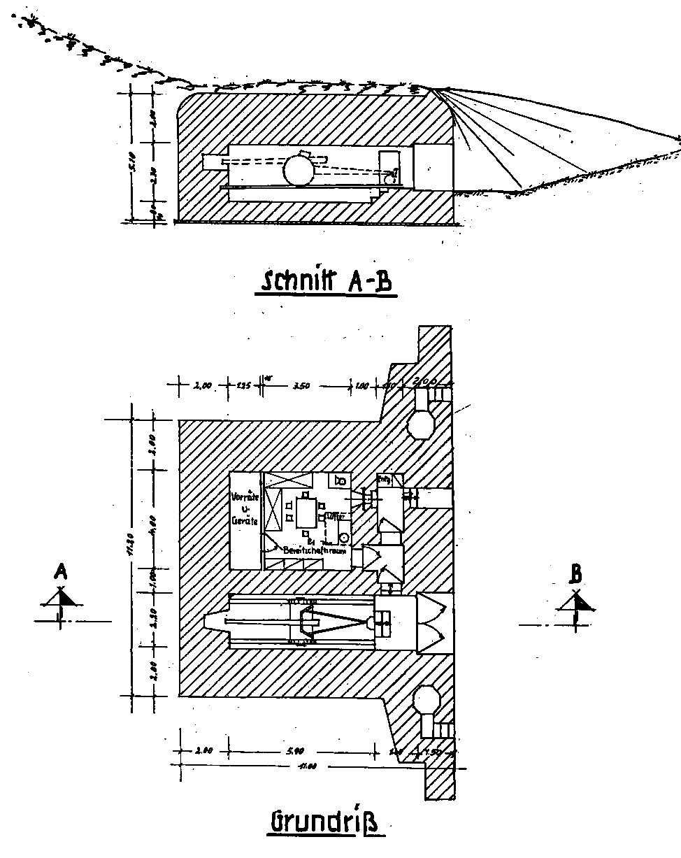
This bunker model belongs to the Regelbauten program. It was built to the strength level of Constantly(St). The model was originally designed for the army. This model belongs to the use group: Bunkers for personnel and equipment.

Specifications

  • Built in First Line (Frontline): 7
  • Crew Capacity: 6 men
  • Concrete Used: 675 m³
  • Earth Excavated: 1500 m³
  • Baustärke (Build Strength): Type B

Rooms

  • Room 1: Combatroom/Entrance (German: * Kampfraum/Eingang*)
  • Room 2: Gaslock (German: * Gasschleuse*)
  • Room 4: Crew (German: * Bereitschaftsraum/Unterschlupf*)
  • Room 7: Observation post (German: * Offener Beobacther*)
  • Room 30: Store room (German: * Vorräte/Lagerraum*)
  • Room 32: Garage (German: * Unterstellraum*)
  • Room 123: Emergency exit/Bursting well (German: * Notausgang/Sprengbrunnen*)

Remarks

This model is built in several variants, i.a. with a tobruk on the left or right side and even with a tobruk on each side. I have chosen to draw it with one tobruk on the left side.

Location on Map

Data Sheet

crew 6
armament Alle < 7,62cm | 2cm FlaK 30 | 2cm FlaK 38 | GrWrf. 34
function Bunkers for ordonance and gear
materials [object Object]
concrete M3 675
dimensions [object Object]
german Name PaK-Unterstellraum mit Unterkunft
total Built 38
english Name Anti-tank gun bunker
model Number 629
design Release Q4 1942
wall Thickness B
Access check_circle Unknown

Is this location still here?

Help keep the map accurate by voting if this location still exists or has been destroyed.