BunkerAtlas Logo
Map Database 139a

139a

-

Military Bunker

Unknown

Get Directions

Gallery

Description

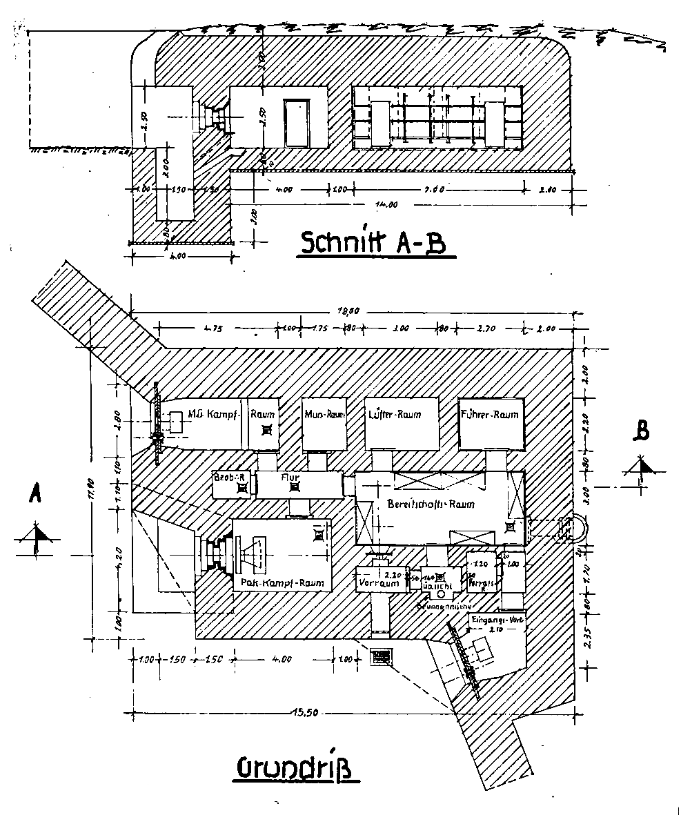
This bunker model belongs to the Regelbauten program. It was built to the strength level of Constantly(St). The model was originally designed for the army. This model belongs to the use group: Flanking cannon stillage.

Specifications

  • Crew Capacity: 16 men
  • Concrete Used: 1330 m³
  • Earth Excavated: 1800 m³

Location on Map

Data Sheet

crew 16
function Casemates for enfilade fire
materials [object Object]
concrete M3 1330
dimensions [object Object]
german Name Schartenstand für 4,7cm FestungsPaK (t) und MG
english Name Casemate for 4,7cm Festungspak(t) und MG
model Number 139a
Access Unknown

Is this location still here?

Help keep the map accurate by voting if this location still exists or has been destroyed.