BunkerAtlas Logo
Map Database WH 691

WH 691

-

Military Bunker

Unknown

Get Directions

Gallery

Description

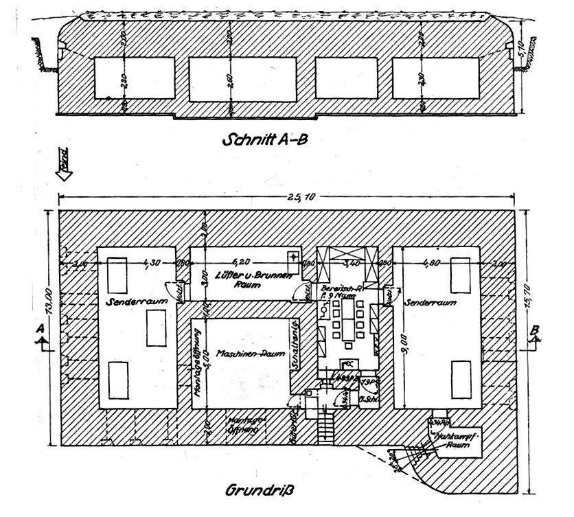
This bunker model belongs to the Regelbauten program. It was built to the strength level of Constantly(St). The model was originally designed for the army. This model belongs to the use group: Communication bunkers.

Specifications

  • Crew Capacity: 9 men
  • Concrete Used: 1350 m³
  • Earth Excavated: 1850 m³
  • Baustärke (Build Strength): Type B

Remarks

This model is only built in Gefechtstand WBD. Silkeborg.

Location on Map

Data Sheet

function Open gun emplacements
materials [object Object]
concrete M3 38
german Name Ringstand für Schweren Granatenwerfer
english Name Bunker with heavy mortar
model Number 69
Access check_circle Unknown

Is this location still here?

Help keep the map accurate by voting if this location still exists or has been destroyed.